Продажа дома
Московская область, Пушкино,
- 224 м²
- Площадь
- 137 м²
- Жилая площадь
- 13.80 м²
- Площадь кухни
- 2
- Этажность
- 11 сот
- Площадь участка
Это объявление снято с публикации.
Если это ваше объявление, восстановите его в личном кабинете или подайте новое.
В ином случае, вы можете перейти на главную или поискать другие предложения.
Арт. 88086438. В продаже предлагается отличный дом для большой семьи, построенный в 2021 году из клееного бруса, общей площадью 224, 1 кв. метра.
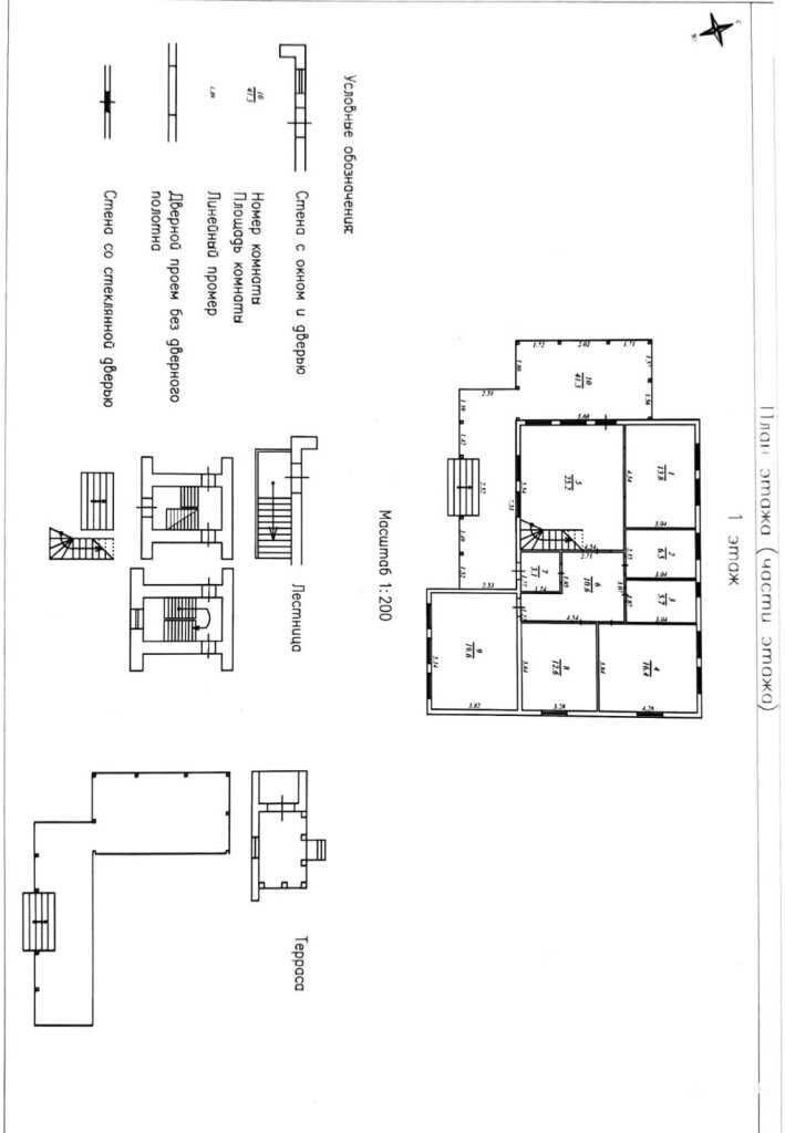
На первом этаже расположены три комнаты: две детские и родительская спальня. Также имеются санузел площадью 5, 7 кв. метра, бойлерная и постирочная (объединены в одно помещение) площадью 6, 5 кв. метра, просторный коридор площадью 10, 6 кв. метра и кухня-гостиная: кухня — 13, 8 кв. метра и гостиная — 25, 2 кв. метра. Дополняет первый этаж просторная терраса с двумя выходами из дома, площадь которой составляет 41, 3 кв. метра.
На втором этаже находится просторная игровая комната и зона кинотеатра общей площадью 63, 2 кв. метра, предлагающая множество мест для хранения игрушек, книг и других детских вещей.
Вокруг дома выложена плиточная дорожка, остальная часть участка засеяна газоном и украшена плодовыми деревьями, кустами голубики и грядками с клубникой. При въезде предусмотрено парковочное место на две машины. На участке также установлены детская площадка и батут, а также отдельное строение (хозблок) для хранения садового инвентаря и оборудования. Рядом с террасой оборудована мангальная зона. Дом находится под видеонаблюдением по всему периметру и оснащен сигнализацией.
Внутри выполнен свежий и качественный ремонт с использованием дорогих материалов. Дом полностью меблирован: встроенная кухня, шкафы и другая мебель. Он готов к комфортному проживанию.
Коммуникации: магистральный газ, скважина, электричество (15 кВт) и септик. Отопление осуществляется с помощью газового котла. Участок ровный и правильной формы, забор с откатными воротами.
Круглогодичный подъезд. Тихое и спокойное место с освещением и видеонаблюдением по всему периметру поселка, закрытым въездом. Дом полностью готов как для постоянного проживания, так и для отдыха вдали от городской суеты. Рядом находятся города Ивантеевка и Пушкино, магазины «Дикси» и «Пятерочка». Автобусная остановка в шаговой доступности, до ж/д станции — всего 10 минут на автомобиле.
Один взрослый собственник. Быстрый выход на сделку!
Дата обновления: 6 декабря 2025